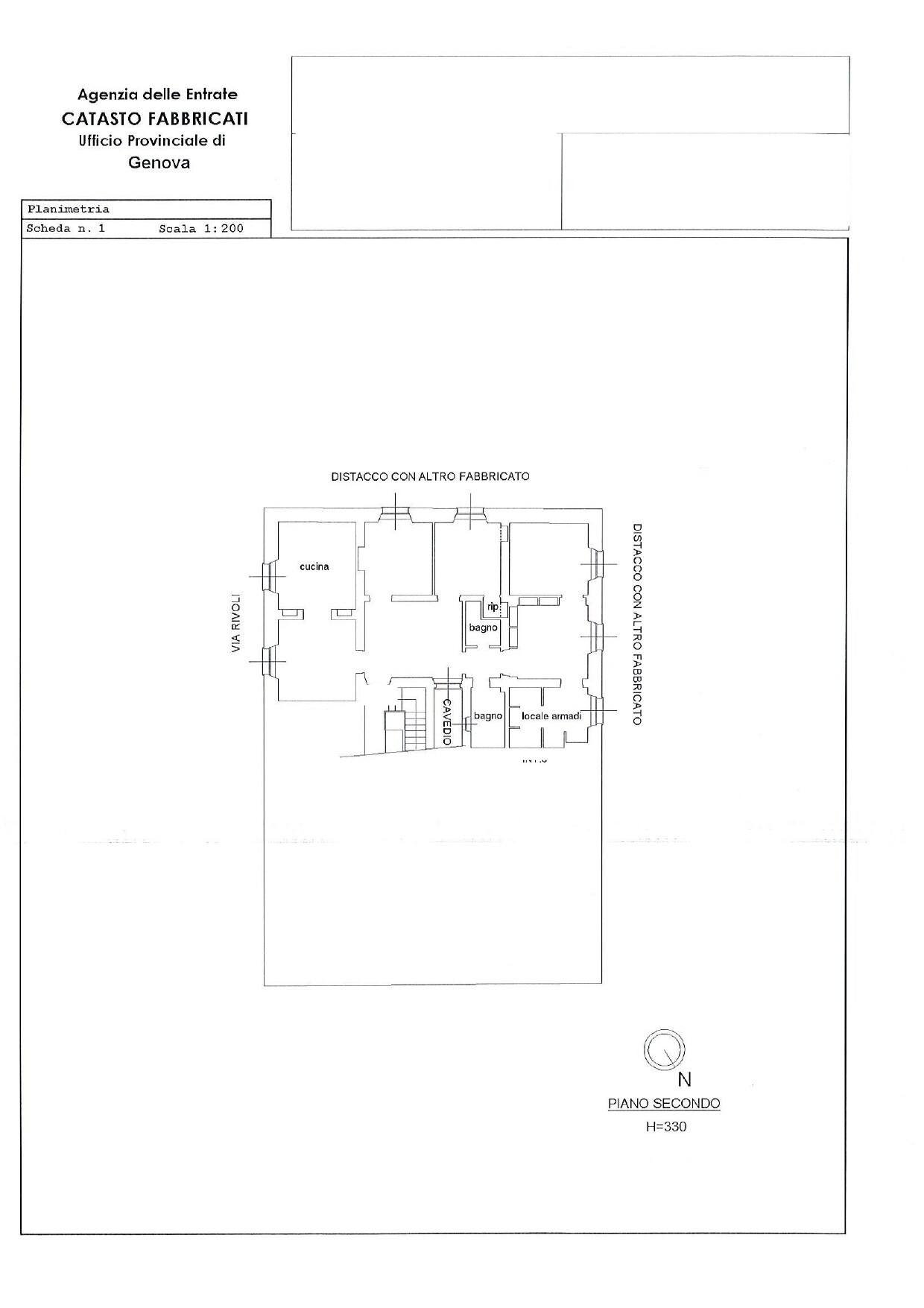
Appartamento 50mq Genova Nervi
Informazioni GalleryNel cuore dell’antico borgo marinaro di Capolungo, precisamente in Via Aurelia, a soli 50 metri dalla spiaggia, proponiamo in vendita un immobile situato al secondo piano di una caratteristica palazzina senza ascensore.
L'appartamento si compone di una luminosa e spaziosa zona living open-space, impreziosita da un angolo cottura, due camere da letto, di cui una mansardata, e un elegante bagno.
Completano la proprietà due balconi, di cui uno che offre una vista mare mozzafiato con affaccio sia a sud che ad est, garantendo così una luce naturale che inonda l’ambiente durante tutte le ore del giorno.
L’immobile si presenta in ottime condizioni interne ed è venduto arredato.
Dotato di riscaldamento autonomo.
Categoria catastale: A/4. Superficie catastale: 50 mq, escluse le aree scoperte. Rendita catastale: € 340,86.
Posizione strategica: a soli 50 metri dalla spiaggia e adiacente alla passeggiata Anita Garibaldi.
Un’opportunità rara per vivere il mare di Nervi ogni giorno, in un contesto di assoluto relax.
Ottimo per investimento ed adatto per affitti di breve periodo.
RARA OPPORTUNITA' IN ZONA.
Prezzo richiesto: € 268.000,00.
La consegna dell’appartamento avverrà non prima di dodici mesi.
Per ulteriori informazioni, contattare STUDIO IMMOBILIARE VILLANI SRL cell: 3357192871 | tel: 010391010
Planimetria, superfici, e tutti i dati degli immobili qui pubblicati, sono prettamente indicativi e non potranno essere utilizzati come parte integrante di un eventuale contratto sia di vendita che locazione della proprietà.
La descrizione ha valore puramente indicativo e non costituisce elemento contrattuale.
Nel cuore dell’antico borgo marinaro di Capolungo, precisamente in Via Aurelia, a soli 50 metri dalla spiaggia, proponiamo in vendita un immobile situato al secondo piano di una caratteristica palazzina senza ascensore.
L'appartamento si compone di una luminosa e spaziosa zona living open-space, impreziosita da un angolo cottura, due camere da letto, di cui una mansardata, e un elegante bagno.
Richiedi informazioni su questo immobile
Se sei interessato a questo immobili inserisci i tuoi dati, ti ricontatteremo nel minor tempo possibile.
Appartamento 83mq Genova Sturla
Informazioni GalleryNel quartiere di Sturla e precisamente nella tranquilla Viale Bernabò Brea, vendiamo appartamento di vani 5.5 posto al quarto piano di uno stabile recentemente rinnovanto senza ascensore.
L'edificio ha appena beneficiato di interventi straordinari quali rifacimento cappotto termico, facciata nuova, installazione impianto fotovoltaico, garantendo così elevata efficienza energetica e comfort abitativo.
L'appartamento è cosi composto: ingresso, soggiorno, due camere da letto, cucina, servizio, oltre ad una comoda dispensa.
L'immobile gode di una doppia esposizione est-ovest, che assicura luminosità durante tutto l'arco della giornata, ed è valorizzato dalla presenza di due balconi con vista nel verde.
Dotato di riscaldamento autonomo.
Completa la proprietà un posto auto condominiale assegnato e una cantina di proprietà.
Soluzione perfetta per chi desidera un immobile efficiente, già valorizzato da interventi strutturali importanti, in una zona comoda e ben servita.
L'immobile attualmente abitato, sarà libero a partire da fine novembre, ideale quindi, anche per chi cerca una soluzione da pianificare con calma.
Richiesta euro 220.000,00.
Per informazioni STUDIO IMMOBILIARE VILLANI SRL Luna Muzio cell. 3471017302 tel. 010391010 e-mail info@immobiliarevillani.it. Planimetria, superfici, e tutti i dati degli immobili qui pubblicati, sono prettamente indicativi e non potranno essere utilizzati come parte integrante di un eventuale contratto sia di vendita che locazione della proprietà. La descrizione ha valore puramente indicativo e non costituisce elemento contrattuale.
Nel quartiere di Sturla e precisamente nella tranquilla Viale Bernabò Brea, vendiamo appartamento di vani 5.5 posto al quarto piano di uno stabile recentemente rinnovanto senza ascensore.
L'edificio ha appena beneficiato di interventi straordinari quali rifacimento cappotto termico, facciata nuova, installazione impianto fotovoltaico, garantendo così elevata efficienza energetica e comfort abitativo.
L'appartamento è cosi composto: ingresso, soggiorno, due camere da letto, cucina, servizio, oltre ad una comoda dispensa.
Richiedi informazioni su questo immobile
Se sei interessato a questo immobili inserisci i tuoi dati, ti ricontatteremo nel minor tempo possibile.
Appartamento 87mq Genova Sturla
Informazioni GalleryBOMBONIERA IN VILLA OTTOCENTESCA A STURLA
Nel cuore del prestigioso quartiere di Sturla, lungo la via omonima, sorge una splendida Villa dell'Ottocento immersa in un contesto di assoluta tranquillità. Al secondo e ultimo piano di questa dimora storica, proponiamo in vendita un’esclusiva proprietà bilivello, una vera e propria bomboniera" dove il fascino del passato incontra la modernità più raffinata. Questo angolo di relax, protetto dal silenzio e dal verde, gode paradossalmente di una posizione strategica, a pochi passi da tutti i servizi, i negozi e i principali collegamenti della città. L'ingresso principale si apre su un salone doppio, un ambiente luminoso e accogliente che dialoga perfettamente con la cucina e il bagno al piano. Una scala interna conduce al piano superiore mansardato, dedicato interamente alla zona notte. Qui troviamo una spaziosa camera matrimoniale arricchita da una cabina armadi su misura e dal valore aggiunto di un terrazzino privato ad accesso diretto, il luogo ideale per godersi la prima luce del mattino nel massimo della privacy. L'immobile è stato oggetto di una recente e accurata ristrutturazione che ha interessato ogni dettaglio, dagli infissi di ultima generazione alla porta blindata, fino alla completa installazione dell'aria condizionata. La casa viene consegnata parzialmente arredata con finiture di design, tra le quali spiccano le iconiche armadiature firmate LAGO, che conferiscono un tocco di eleganza all’ambiente. Il riscaldamento è termoautonomo. Vivere in questa unità significa anche godere di spazi esterni straordinari. La villa è circondata da un maestoso parco condominiale, una distesa di verde piantumata con pini marittimi e cedri del Libano che ospita una piscina esclusiva e una zona barbecue dedicata alla convivialità. La proprietà è ulteriormente valorizzata da un appezzamento di terreno pertinenziale, una cantina ad uso esclusivo e un irrinunciabile posto auto coperto situato nel garage privato. Richiesta euro 425.000,00. Per informazioni STUDIO IMMOBILIARE VILLANI SRL Luna Muzio cell. 3471017302 tel. 010391010 e-mail info@immobiliarevillani.it. Planimetria, superfici, e tutti i dati degli immobili qui pubblicati, sono prettamente indicativi e non potranno essere utilizzati come parte integrante di un eventuale contratto sia di vendita che locazione della proprietà. La descrizione ha valore puramente indicativo e non costituisce elemento contrattuale."
BOMBONIERA IN VILLA OTTOCENTESCA A STURLA
Richiedi informazioni su questo immobile
Se sei interessato a questo immobili inserisci i tuoi dati, ti ricontatteremo nel minor tempo possibile.
Appartamento 78mq Genova Centro Storico
Informazioni GalleryNel cuore del Centro Storico di Genova, e precisamente in Via dei Giustiniani, vendiamo ampissimo appartamento di vani 5.5 posto al terzo piano di uno stabile con ascensore (attualmente senza allaccio).
L'immobile è così composto: ingresso, sala, camera da letto, cucina abitabile, bagno ed antibagno.
L'appartamento si presenta in buone condizioni interne, con serramenti in pvc nuova generazione di recente installazione.
Riscaldamento autonomo.
Posizione comodissima, massima centralità a pochi passi da Piazza San Lorenzo e da Piazza Caricamento.
Ideale per investimento.
Richiesta euro 138.000,00.
Per informazioni STUDIO IMMOBILIARE VILLANI SRL Alessandro Villani cell. 3357192871 tel. 010391010 e-mail info@immobiliarevillani.it.
Planimetria, superfici, e tutti i dati degli immobili qui pubblicati, sono prettamente indicativi e non potranno essere utilizzati come parte integrante di un eventuale contratto sia di vendita che locazione della proprietà. La descrizione ha valore puramente indicativo e non costituisce elemento contrattuale.
Nel cuore del Centro Storico di Genova, e precisamente in Via dei Giustiniani, vendiamo ampissimo appartamento di vani 5.5 posto al terzo piano di uno stabile con ascensore (attualmente senza allaccio).
L'immobile è così composto: ingresso, sala, camera da letto, cucina abitabile, bagno ed antibagno.
L'appartamento si presenta in buone condizioni interne, con serramenti in pvc nuova generazione di recente installazione.
Riscaldamento autonomo.
Posizione comodissima, massima centralità a pochi passi da Piazza San Lorenzo e da Piazza Caricamento.
Richiedi informazioni su questo immobile
Se sei interessato a questo immobili inserisci i tuoi dati, ti ricontatteremo nel minor tempo possibile.
Appartamento 38mq Genova Centro
Informazioni GalleryIN COLLABORAZIONE CON CMC immobiliare e CMT consulenze immobiliari di Mario Tessiore. Nel cuore pulsante del Centro città e precisamente in Via G. D’Annunzio, comodissimo ai principali mezzi e servizi, all’interno di un elegante edificio, oggetto di un accurato intervento di frazionamento e ristrutturazione totale, proponiamo in vendita nuovo monolocale di circa 38 mq, situato in una delle zone più ricercate di Genova. L’appartamento è composto da ingresso, vano unico con angolo cottura e maxi finestra lato sud, ripostiglio e bagno con zona lavanderia. Gli ambienti sono rifiniti con materiali di pregio, pavimentazione in parquet, porta blindata e tapparelle elettriche. L’unità è dotata di impianto di riscaldamento e climatizzazione con pompe di calore e split, che garantiscono elevata efficienza energetica e comfort in ogni stagione. Predisposizione lavatrice e asciugatrice. Soluzione nuova, mai abitata, ideale sia come prima casa che come investimento a reddito. Il fabbricato dispone di ascensori e servizio di portineria 24 ore. La posizione strategica e la qualità dell’intervento rendono queste soluzioni ideali sia come prima casa che come investimento a reddito. Richiesta euro 148.000,00. Per informazioni STUDIO IMMOBILIARE VILLANI SRL Luna Muzio cell. 3471017302 tel. 010391010 e-mail info@immobiliarevillani.it. Planimetria, superfici, e tutti i dati degli immobili qui pubblicati, sono prettamente indicativi e non potranno essere utilizzati come parte integrante di un eventuale contratto sia di vendita che locazione della proprietà. La descrizione ha valore puramente indicativo e non costituisce elemento contrattuale.
IN COLLABORAZIONE CON CMC immobiliare e CMT consulenze immobiliari di Mario Tessiore. Nel cuore pulsante del Centro città e precisamente in Via G. D’Annunzio, comodissimo ai principali mezzi e servizi, all’interno di un elegante edificio, oggetto di un accurato intervento di frazionamento e ristrutturazione totale, proponiamo in vendita nuovo monolocale di circa 38 mq, situato in una delle zone più ricercate di Genova. L’appartamento è composto da ingresso, vano unico con angolo cottura e maxi finestra lato sud, ripostiglio e bagno con zona lavanderia.
Richiedi informazioni su questo immobile
Se sei interessato a questo immobili inserisci i tuoi dati, ti ricontatteremo nel minor tempo possibile.
Appartamento 262mq Genova Castelletto
Informazioni GalleryC. So Solferino Residenza di rappresentanza, in prestigioso palazzo D'epoca di rara eleganza. In uno dei contesti più prestigiosi e ricercati della città, all'interno di un magnifico palazzo d'epoca proponiamo in vendita una residenza signorile di circa 262 mq. L'immobile di categoria catastale A1, si distingue per il fascino autentico delle dimore storiche, dove architettura, luce, e dettagli decorativi creano un'atmosfera di assoluto prestigio. Gli ambienti ampi e scenografici, si sviluppano su 11,5 vani e sono impreziositi da elementi originali di grande valore storico architettonico. La proprietà gode di una tripla esposizione sud-est-ovest, che regala una luminosità straordinaria durante tutto l'arco della giornata e valorizza ulteriormente i volumi interni. All'interno si conservano raffinatissimi pavimenti originali in graniglia decorata, autentiche testimonianze d'epoca, oltre a soffitti e controsoffitti finemente lavorati, arricchiti da decorazioni e dettagli ornamentali di pregio che conferiscono agli ambienti un carattere nobile e distintivo. La generosa metratura e la distribuzione degli spazi rendono questa proprietà ideale per una raffinata ristrutturazione conservativa, capace di valorizzare appieno l'identità storica dell'immobile e trasformarlo in una dimora di rappresentanza di altissimo livello. Completa la proprietà piccolo balconcino e una cantina di pertinenza. Una residenza unica nel suo genere, destinata a chi desidera vivere in un contesto di grande prestigio, dove storia, architettura e raffinatezza si incontrano in un perfetto equilibrio.
Per informazioni STUDIO IMMOBILIARE VILLANI SRL Alessandro Villani cell. 3357192871 tel. 010391010 e-mail info@immobiliarevillani.it. Planimetria, superfici, e tutti i dati degli immobili qui pubblicati, sono prettamente indicativi e non potranno essere utilizzati come parte integrante di un eventuale contratto sia di vendita che locazione della proprietà. La descrizione ha valore puramente indicativo e non costituisce elemento contrattuale.
C. So Solferino Residenza di rappresentanza, in prestigioso palazzo D'epoca di rara eleganza. In uno dei contesti più prestigiosi e ricercati della città, all'interno di un magnifico palazzo d'epoca proponiamo in vendita una residenza signorile di circa 262 mq. L'immobile di categoria catastale A1, si distingue per il fascino autentico delle dimore storiche, dove architettura, luce, e dettagli decorativi creano un'atmosfera di assoluto prestigio. Gli ambienti ampi e scenografici, si sviluppano su 11,5 vani e sono impreziositi da elementi originali di grande valore storico architettonico.
Richiedi informazioni su questo immobile
Se sei interessato a questo immobili inserisci i tuoi dati, ti ricontatteremo nel minor tempo possibile.
Appartamento 47mq Genova Sturla
Informazioni GallerySturla-Via ReDiPuglia Appartamento ristrutturato con balconi e vista mare. Nel quartiere Residenziale di Sturla proponiamo in affitto luminoso appartamento di 4 vani completamente ristrutturato. L'immobile è situato al primo piano dello stabile ,ma grazie all'esposizione aperta verso sud-est e l'affaccio alto e panoramico, gode di una luminosità e di una vista paragonabile al settimo piano, risultando molto arioso e soleggiato durante la giornata. L'appartamento è composto da: ingresso, ampia cucina abitabile, una camera matrimoniale, un servizio, due balconi con affaccio aperto. La recente ristrutturazione rende l'immobile pronto da abitare, con ambienti ordinati, luminosi e ben distribuiti. Il riscaldamento è termoautonomo, richiesta canone mensile 750,00 euro spese comprese, contratto 3+2. La zona Particolarmente comoda grazie alla vicinanza a negozi, servizi, mezzi pubblici e al mare, rendendo l'immobile ideale sia per coppie che per lavoratori che desiderano vivere in un quartiere ben collegato e servito.
Per informazioni STUDIO IMMOBILIARE VILLANI SRL Alessandro Villani Cell. 3357192871 tel. 010391010 e-mail info@immobiliarevillani.it. Planimetria, superfici, e tutti i dati degli immobili qui pubblicati, sono prettamente indicativi e non potranno essere utilizzati come parte integrante di un eventuale contratto sia di vendita che locazione della proprietà. La descrizione ha valore puramente indicativo e non costituisce elemento contrattuale.
Sturla-Via ReDiPuglia Appartamento ristrutturato con balconi e vista mare. Nel quartiere Residenziale di Sturla proponiamo in affitto luminoso appartamento di 4 vani completamente ristrutturato. L'immobile è situato al primo piano dello stabile ,ma grazie all'esposizione aperta verso sud-est e l'affaccio alto e panoramico, gode di una luminosità e di una vista paragonabile al settimo piano, risultando molto arioso e soleggiato durante la giornata. L'appartamento è composto da: ingresso, ampia cucina abitabile, una camera matrimoniale, un servizio, due balconi con affaccio aperto.
Richiedi informazioni su questo immobile
Se sei interessato a questo immobili inserisci i tuoi dati, ti ricontatteremo nel minor tempo possibile.
Appartamento 250mq Genova Castelletto
Informazioni GalleryVia Assarotti appartamento di prestigio. In una delle vie più eleganti e centrali della città, proponiamo in vendita, splendido appartamento di 250mq ,10 vani , situato in stabile signorile con tetto e facciate completamente rifatti nel 2025. L'immobile, caratterizzato da grande fascino e spazi d'altri tempi, gode di tripla esposizione ovest-est-sud, che garantisce luminosità durante tutto l'arco della giornata. Composizione interna: ampio ingresso alla genovese, ideale come zona di rappresentanza, salone doppio di grande metratura, tre camere da letto dotate di cabina armadio, bagno padronale di dimensioni generose, secondo servizio in zona lavanderia, tramite tre gradini si accede al terzo servizio con lavanderia , cucina abitabile dalla quale si accede a un terrazzino riservato.
Riscaldamento autonomo ambienti ampi e versatili; Soluzione ideale sia come prestigiosa abitazione privata sia come studio professionale di rappresentanza. Immobile raro per metratura, posizione e distribuzione degli spazi, perfetto per chi desidera vivere nel centro cittadino senza rinunciare a comodità e prestigio.
Per informazioni STUDIO IMMOBILIARE VILLANI SRL Luna Muzio cell. 3471017302 tel. 010391010 e-mail info@immobiliarevillani.it. Planimetria, superfici, e tutti i dati degli immobili qui pubblicati, sono prettamente indicativi e non potranno essere utilizzati come parte integrante di un eventuale contratto sia di vendita che locazione della proprietà. La descrizione ha valore puramente indicativo e non costituisce elemento contrattuale.
Via Assarotti appartamento di prestigio. In una delle vie più eleganti e centrali della città, proponiamo in vendita, splendido appartamento di 250mq ,10 vani , situato in stabile signorile con tetto e facciate completamente rifatti nel 2025. L'immobile, caratterizzato da grande fascino e spazi d'altri tempi, gode di tripla esposizione ovest-est-sud, che garantisce luminosità durante tutto l'arco della giornata.
Richiedi informazioni su questo immobile
Se sei interessato a questo immobili inserisci i tuoi dati, ti ricontatteremo nel minor tempo possibile.
Appartamento 81mq Genova Sturla
Informazioni GalleryNel cuore di Via ReDiPuglia, a sturla, proponiamo accogliente appartamento di 81 mq. (5.5vani) situato al piano terra, con ottima esposizione sud-ovest che regala luminosità e ambienti caldi per gran parte della giornata. L'immobile si apre su un ingresso che conduce ad un piacevole soggiorno, ideali per momenti di relax e convivialità. La zona notte è composta da due camere da letto, perfette per famiglia, studio , o stanza ospiti. Completano la proprietà una cucina abitabile , un bagno finestrato e una pratica dispensa, sempre preziosa per l'organizzazione della casa. Il riscaldamento termoautonomo garantisce comfort e gestione indipendente dei consumi. Una soluzione funzionale e pronta da personalizzare, ideale per chi cerca comodità ai servizi e praticità in una zona residenziale e tranquilla.
Per informazioni STUDIO IMMOBILIARE VILLANI SRL Luna Muzio cell. 3471017302 tel. 010391010 e-mail info@immobiliarevillani.it. Planimetria, superfici, e tutti i dati degli immobili qui pubblicati, sono prettamente indicativi e non potranno essere utilizzati come parte integrante di un eventuale contratto sia di vendita che locazione della proprietà. La descrizione ha valore puramente indicativo e non costituisce elemento contrattuale.
Nel cuore di Via ReDiPuglia, a sturla, proponiamo accogliente appartamento di 81 mq. (5.5vani) situato al piano terra, con ottima esposizione sud-ovest che regala luminosità e ambienti caldi per gran parte della giornata. L'immobile si apre su un ingresso che conduce ad un piacevole soggiorno, ideali per momenti di relax e convivialità. La zona notte è composta da due camere da letto, perfette per famiglia, studio , o stanza ospiti. Completano la proprietà una cucina abitabile , un bagno finestrato e una pratica dispensa, sempre preziosa per l'organizzazione della casa.
Richiedi informazioni su questo immobile
Se sei interessato a questo immobili inserisci i tuoi dati, ti ricontatteremo nel minor tempo possibile.
Appartamento 99mq Genova San Martino
Informazioni GalleryVIA ANTONIO CEI
San Martino (Via Cei) affittiamo in ordinato palazzo appartamento di mq 99 circa, arredato, posto al piano terzo con ascensore. L'immobile internamente è in buone condizioni ed è composto da un ingresso, una cucina abitabile da cui si accede ad un balcone , un ampia sala con zona relax e sala pranzo, due camera da letto, un bagno ed un ripostiglio. Contratto transitorio, non residenti, la richiesta mensile è di euro 850,00 + 150 di spese + una mensilità di cauzione. Gli spazi ben distribuiti e funzionali, ideali sia per famiglie che per professionisti alla ricerca di comfort e praticità in una zona ben servita. Per informazioni STUDIO IMMOBILIARE VILLANI SRL Graziano Villani cell. 3356068798 tel. 010391010 e-mail info@immobiliarevillani.it. Planimetria, superfici, e tutti i dati degli immobili qui pubblicati, sono prettamente indicativi e non potranno essere utilizzati come parte integrante di un eventuale contratto sia di vendita che locazione della proprietà. La descrizione ha valore puramente indicativo e non costituisce elemento contrattuale.
MODIFICA
Dati intermediazione
VIA ANTONIO CEI
Richiedi informazioni su questo immobile
Se sei interessato a questo immobili inserisci i tuoi dati, ti ricontatteremo nel minor tempo possibile.






































































































































































































































































































































